Sacrewell Mill, Thornhaugh
A water-powered corn mill in the historic county of Cambridgeshire, England.
See related images and documents.
See images only.
This mill is a Heritage Partner. These organisations support our cause and share in our success. In return they receive a range of benefits, including publicity such as our featured mill pages. Find out more about the scheme...
The present watermill at Sacrewell dates from 1755, with the waterwheel inside the building, although it seems likely that it is not the first mill on the site. It stands on gently sloping ground between the River Nene to the south and the River Welland to the north, lying between poorly drained fens to the east and limestone hills to the west. The present watermill was built in 1755, with the waterwheel inside the building. The mill house was home for the miller and his wife, who would have baked bread in the bakery.
There’s evidence of pre-Roman occupation in the area and extensive archaeological remains from the Romans themselves on Sacrewell’s land. Certainly, there were three watermills in the area by the time the Domesday Book was compiled in 1086 and Sacrewell could have been one of the Domesday sites.
An estate plan from 1838 shows little alteration to it since 1780. But the mid-19th century was a time of improvement and prosperity in British agriculture and a large scale Ordnance Survey map of 1885 shows many changes and improvements.
The buildings consist of the mill, a central adjoining mill house, with the ground floor mill flanked by a bakery and a stable block.
The surviving southern waterwheel is a mid-19th century iron wheel, with timber shafts that may date back to the 18th century. There was originally a northern wheel, too, which was removed in the late-19th or early-20th century, along with its machinery.
At the same time as upgrading the machinery, there was probably work to increase the power of the mill. Alterations to the millpond may have raised the water level, which would have allowed the waterwheel to change from a breastshot type (with incoming water approximately level with the hub of the wheel) to a high breast or pitchback type (with the incoming water near the top of the wheel). The upgrade would have increased the power the wheel generated, as the water would have been able to hit the buckets at a higher level.
The mill has complete mill machinery in working order with a cast iron overshot wheel and pit wheel. There is a great spur wheel and a timber main drive shaft and crown wheel. Two of the original 3 sets of stones remain. There is also a chain hoist operated by the main drive on a windlass principle.
An award of £1.4 million from the Heritage Lottery Fund demonstrates the importance and significance of the mill complex as part of England’s architectural, social and cultural heritage. The project has two elements: the repair of the building and mill machinery and the installation of learning resources.
Repair and conservation work should be complete by May 2015 with the learning and interpretation resources in place by August 2015.
Website -
Facebook -
X (Twitter)
Full details
Power source | Water |
Mill type | Watermill |
Mill function | Corn mill |
Archive ID | 7689 |
Location | Sacrewell, Thornhaugh, Peterborough |
Historic county | Cambridgeshire |
Country | England, United Kingdom |
NGR | TF 07890 00063 |
Latitude/longitude | 52.58761300, -0.40901700 |
Location
Gallery
-
The mill c 1967. Photo by E M Gardner
-
The bin floor c 1967. Photo by E M Gardner
-
The mill in September 1979. Photo by Frank Gregory
-
1991 ink drawing by Ken Major, showing the existing south-east elevation of the mill building
-
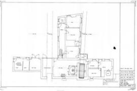
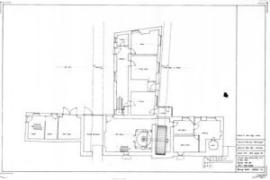
A 1991 ink drawing by Ken Major of the ground floor plan that existed at the time of drawing
-
The mill today. Photo copyright Sacrewell
References
- Anthony Bryan, Mills Research Group Database
Missing information? Click here to tell us about this mill.